Описание
Характеристики
Отзывы
Описание
Преимущества:
- удобство монтажа
- надежность крепления крышных вентиляторов
Общие сведения и назначение:
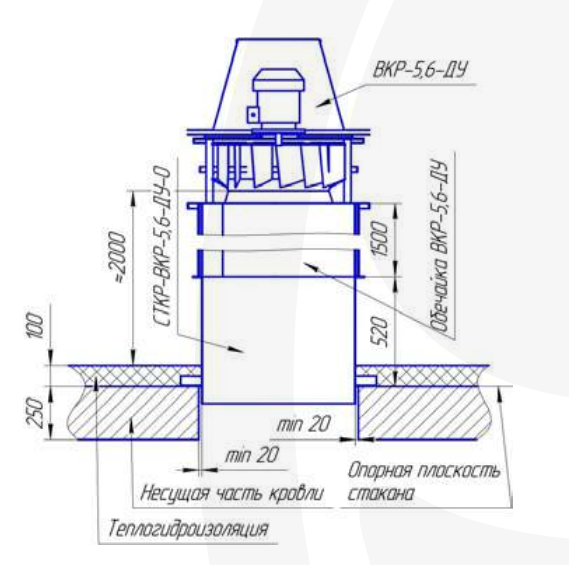
- стаканы монтажные СТКР предназначены для монтажа крышных вентиляторов ВКР(ВКРМ), ВКОП, ВКО общего назначения и вентиляторов дымоудаления ВКР ДУ, ВКРВ ДУ
- максимальная температура дымовоздушной смеси для стаканов СТКР ВКР ДУ, ВКРВ ДУ с не должна превышать +600°С. Время работы при максимальной температуре – не менее 120 мин
Варианты изготовления:
- общего назначения из углеродистой стали
Условия эксплуатации:
- температура окружающей среды от -40 до +40 °С
- умеренный климат У2 и У3 размещения по ГОСТ 15150-69.
Структура обозначения стакана монтажного СКР:

Монтаж:

Важно При использовании СМКР на монтаже вентиляторов дымоудаления ВКР-№-ДУ, ВКРВ-№-ДУ необходимо учитывать, что высота от верхней поверхности кровли до места выброса будет менее 2 метров. В этом случае, в соответствии с требованиями СП 7.13130.2013 необходимо обеспечить огнезащиту кровли, либо заказать обечайку, позволяющей увеличить высоту от кровли до места выброса газовоздушной среды из вентилятора не менее 2 метров.
Габаритные и присоединительные размеры (чертеж):


Характеристики
Типоразмер
400 мм
Применяемость
ВКО-2,5
Отзывы
Отзывов еще никто не оставлял
Ранее просмотренные товары