Описание
Отзывы
Описание
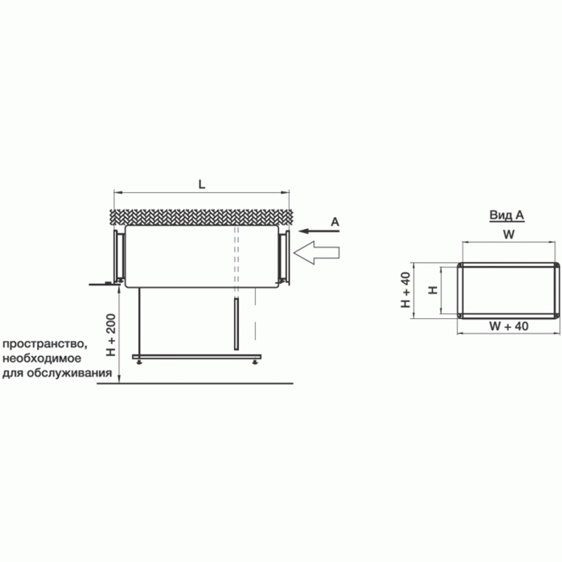
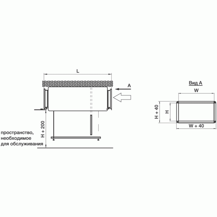
Фильтр воздушный FBRr 500x300 предназначен для очистки от пыли наружного и рециркуляционного воздуха в системах приточной вентиляции и кондиционирования.
Фильтруемый воздух не должен содержать агрессивных газов и паров. Допустимая температура перемещаемого воздуха от –40 до +70°С. Корпус фильтр-бокса FBRr выполнен из оцинкованной стали. Фильтрующие вставки FR к карманным фильтрам FBR изготавливаются из нетканого материала с классом очистки F3 (EU3), F5 (EU5), F5 (EU7). Для простоты обслуживания фильтрующие вставки устанавливаются в направляющих. Наличие фланцев с обеих сторон фильтра обеспечивает простоту монтажа.
Фильтр FBRr 500x300 может устанавливаться вертикально или горизонтально.
Отзывы
Отзывов еще никто не оставлял
Ранее просмотренные товары
